Single-Story New American Home: The Perfect Starter Floor Plan

Sharing is caring!

Specifications

  • Sq. Ft.: 928
  • Bedrooms: 1-2
  • Bathrooms: 2
  • Stories: 1
  • Garages: 2

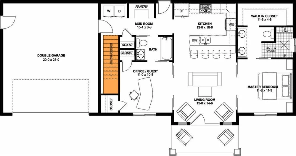
Floor Plan

0094 2 bedroom single story new american home with double garage smallhometours.com 5
Main level floor plan
0094 2 bedroom single story new american home with double garage smallhometours.com 4
Basement stairs location
0094 2 bedroom single story new american home with double garage smallhometours.com 3
Rear elevation sketch of the 2-bedroom single-story New American home.
0094 2 bedroom single story new american home with double garage smallhometours.com 8
Entry porch with wooden posts, cushioned lounge chairs, and a french front door.
0094 2 bedroom single story new american home with double garage smallhometours.com 7
The living room has comfy seats and a matching ottoman over the light hardwood flooring.
0094 2 bedroom single story new american home with double garage smallhometours.com 6
Behind the living area is the kitchen complete with dark cabinetry, quartz countertops, and a breakfast bar lined with modern stools.
0094 2 bedroom single story new american home with double garage smallhometours.com 5
Office with cushioned seats, a white desk, and framed windows overlooking the lush surrounding.
0094 2 bedroom single story new american home with double garage smallhometours.com 4
A floral wallpaper sets a nice accent to the home office.
0094 2 bedroom single story new american home with double garage smallhometours.com 3
Bathroom with pocket doors, a toilet, a washstand, and a tub and shower combo.
0094 2 bedroom single story new american home with double garage smallhometours.com 2
The primary bedroom features a cozy bed, floating nightstands, and black patterned wallpaper.
0094 2 bedroom single story new american home with double garage smallhometours.com 1
Primary bathroom with brass fixtures, a walk-in shower, and a dual sink vanity paired with round mirrors.
0094 2 bedroom single story new american home with double garage smallhometours.com 2
The laundry room is equipped with white front load appliances placed under the white countertop.

Details

This cozy New American house is a great choice for your first home. It has a double garage and a front porch where you can enjoy the fresh air and relax outside.

Inside, you can choose to have two bedrooms or turn one into a den.

The center of the house has a living room and kitchen together in one open space. It feels big and open thanks to sliding doors and tall 9-foot ceilings.

The kitchen has everything you need and includes a big pantry. It’s right next to the mudroom, where the laundry room is also located.

An eating bar that seats four people separates the kitchen from the living room.

The main bedroom is on the right side of the house. It has a private bathroom with four fixtures and a walk-in closet.

There’s another bedroom across the house.

It has access to a full bathroom and can also be used as a home office.