Innovative “Katrina” Cottage Floor Plan Designed for Maximum Comfort and Affordability

Sharing is caring!

Specifications

  • Sq. Ft.: 1,112
  • Bedrooms: 3
  • Bathrooms: 2
  • Stories: 2

Floor Plan

0093 3 bedroom two story katrina cottage for corner lot smallhometours.com 13
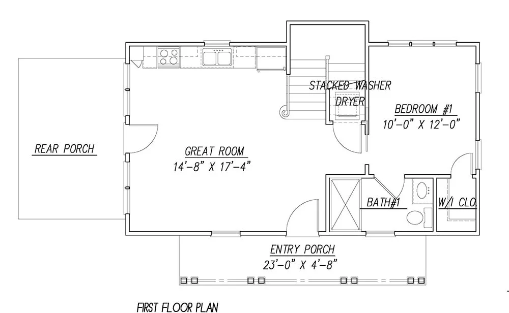
Main level floor plan
0093 3 bedroom two story katrina cottage for corner lot smallhometours.com 12
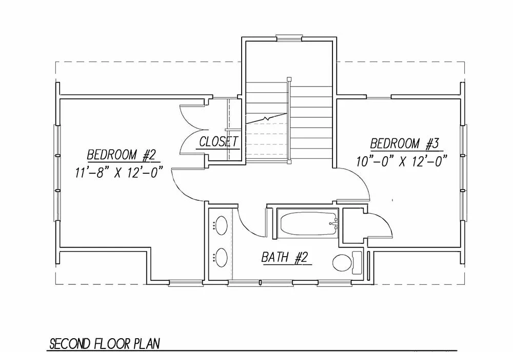
Second level floor plan
0093 3 bedroom two story katrina cottage for corner lot smallhometours.com 11
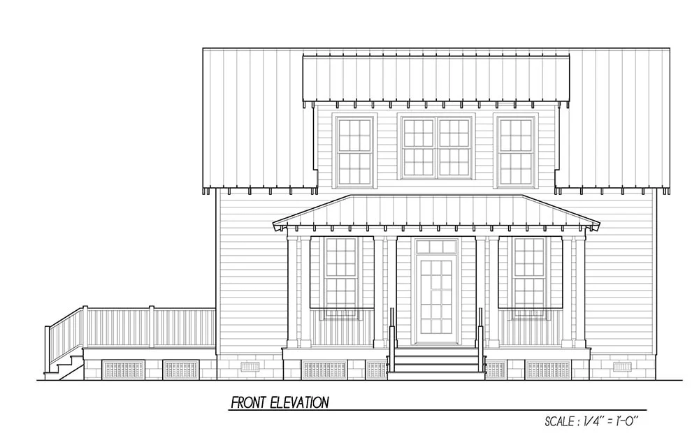
Front elevation sketch of the 3-bedroom two-story Katrina cottage.
0093 3 bedroom two story katrina cottage for corner lot smallhometours.com 10
Right elevation sketch of the 3-bedroom two-story Katrina cottage.
0093 3 bedroom two story katrina cottage for corner lot smallhometours.com 9
Left elevation sketch of the 3-bedroom two-story Katrina cottage.
0093 3 bedroom two story katrina cottage for corner lot smallhometours.com 8
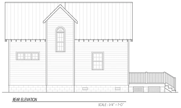
Rear elevation sketch of the 3-bedroom two-story Katrina cottage.

Photos

0093 3 bedroom two story katrina cottage for corner lot smallhometours.com 7
An open layout view showing the living room, kitchen, and a bedroom that rests behind the french door.
0093 3 bedroom two story katrina cottage for corner lot smallhometours.com 6
This bathroom features a black vanity with decorative porcelain sink, quartz countertop, and an oval mirror.
0093 3 bedroom two story katrina cottage for corner lot smallhometours.com 5
Bedroom with vaulted ceiling, blue walls, a cozy bed, and a distressed dresser.
0093 3 bedroom two story katrina cottage for corner lot smallhometours.com 4
View of the living room from the staircase showing a red patterned sofa, dark wood tables, and a small TV.
0093 3 bedroom two story katrina cottage for corner lot smallhometours.com 3
Adjacent to the living room is the kitchen with white cabinets, sage green walls, and a farmhouse sink.
0093 3 bedroom two story katrina cottage for corner lot smallhometours.com 2
Staircase landing adorned with a glass stained window and artworks that are mounted against the green shiplap wall.
0093 3 bedroom two story katrina cottage for corner lot smallhometours.com 1
Home entry with a wooden front door, white rocking chairs, and double columns framing the porch.
0093 3 bedroom two story katrina cottage for corner lot smallhometours.com 3
Side exterior view showing the covered porches graced with double columns and decorative trellis.
0093 3 bedroom two story katrina cottage for corner lot smallhometours.com 2
View of the house from the backyard showing the white horizontal siding, green gables, and rear pergola porch.

Details

This two-story cottage has a lovely, old-fashioned look with its horizontal siding, green pointed roofs, big columns, and a pretty porch with a trellis.

As you walk in through the welcoming front porch, you enter a great room that opens right up to the kitchen. This room has a big wall of windows that show off beautiful views and let in lots of sunlight.

There’s also a covered porch off this room where you can sit outside and relax.

On the right side of the house, there’s a bedroom that has everything you need: a full bathroom and a walk-in closet.

There’s also a laundry room close by to make washing clothes convenient.

Upstairs, there are two more bedrooms.

They share a bathroom that has two sinks, a toilet, and a bathtub.

Source