20-foot shipping container home with rooftop deck (with floor plan)

Sharing is caring!

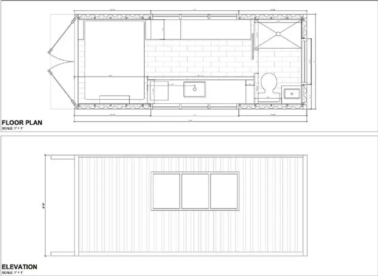
Check out this amazing tour of a tiny home made from a 20-foot shipping container! Transforming a container that is 20 feet long and 8 feet wide into a fully functioning home is quite a challenge. But this Airbnb has done it beautifully with a great design and look.

Levi Kelly @levimkelly

This shipping container really is a tiny house. Even though it’s only 160 square feet, it has a queen-size bed, a walk-in shower with custom tiling, a refrigerator, and more!

0442 20ft shipping container home with rooftop deck floor plan smallhometours.com 3
Levi Kelly @levimkelly
0442 20ft shipping container home with rooftop deck floor plan smallhometours.com 5
Levi Kelly @levimkelly
0442 20ft shipping container home with rooftop deck floor plan smallhometours.com 6
Levi Kelly @levimkelly
0442 20ft shipping container home with rooftop deck floor plan smallhometours.com 7
Levi Kelly @levimkelly
0442 20ft shipping container home with rooftop deck floor plan smallhometours.com 10
Levi Kelly @levimkelly
0442 20ft shipping container home with rooftop deck floor plan smallhometours.com 11
Levi Kelly @levimkelly

The front doors of the house are made from the original container doors. They open up wide, swinging 270 degrees to blend the outside with the inside.

0442 20ft shipping container home with rooftop deck floor plan smallhometours.com 1
Levi Kelly @levimkelly

The rooftop deck is a wonderful spot to relax, grill, or watch the stars at night. It has clean, sleek cable railings that keep it safe without blocking the view. You can also turn on optional LED lights on the railing for a soft glow in the evening.

0442 20ft shipping container home with rooftop deck floor plan smallhometours.com 9
Levi Kelly @levimkelly

Inside, there’s a clever Murphy bed that converts into a couch during the day. At night, it’s a super comfy queen bed, and you can set it up or put it away in less than a minute with just a light touch. The counters are made of granite or quartz, and there’s pine shiplap all around.

0442 20ft shipping container home with rooftop deck floor plan smallhometours.com 4
Levi Kelly @levimkelly

Custom-built wooden windows finish off the space. The outside of the container has cedar siding that protects it from the sun but lets you see parts of the original container.

To learn more, check out this Airbnb listing: https://www.airbnb.com/rooms/24130976

0442 20ft shipping container home with rooftop deck floor plan smallhometours.com 2
Levi Kelly @levimkelly
0442 20ft shipping container home with rooftop deck floor plan smallhometours.com 12
Levi Kelly @levimkelly
0442 20ft shipping container home with rooftop deck floor plan smallhometours.com 8
Levi Kelly @levimkelly