What if you could own a home that doesn’t harm the environment, made only from materials that are good for the earth?
That’s exactly what Sustain Design Studio does. They created the Cali SOLO 1 to let people live in a way that’s kind to the planet, and they made it look really cool too.
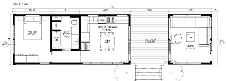
The Cali SOLO 1 is a home ready for solar power. It’s a pre-built, simple home that focuses on being eco-friendly.
It offers a living space where you don’t have to feel bad about hurting the environment, and it’s also very stylish.

The living area is separated from the kitchen, bathroom, and bedroom by a large outdoor patio.
This setup lets you have guests over without losing your privacy.

It’s also useful if you share the home with someone who has a different schedule.
They can sleep quietly in the morning while you use the living area for work or fun.

The living area has big, open windows that show amazing views. This model features very modern furniture—I really like the solid white coffee table.

Check out how bright the kitchen is! Picture yourself making breakfast as the morning sun starts lighting up everything.
It’s so nice, it almost makes me wish I had this home. But, I’m not someone who gets up before 8 a.m.

There’s plenty of storage space above that has been turned into a second bedroom for guests.
You could put another twin bed up there if you want, or just use it as a big guest bedroom.

The bathroom has a combined shower and bathtub, a large closet, and a separate area for the toilet.

I can’t think of a nicer bedroom. The master suite has it all: a king-size bed, great views, and hardwood floors.
There’s something at the end of the bed that looks cool too. This home really has everything you need.

If you’re excited to celebrate with a bottle of champagne in your new park model, wait until you see the other models we have.
Follow our Park Model World Facebook page to check out more amazing homes.
And don’t forget to share our page with your family and friends on Facebook and Twitter!
