Tiny homes have become more popular in the last few years. People choose to live in small homes for many reasons.
One big reason is that some people want to make their lives simpler. In a tiny home, there is only room for the most important items.
Another reason people like tiny homes is because they cost less to keep up than bigger houses. Living in a small home is also good for the environment.
Because more people are interested in this different way of living, there are now more companies that make tiny homes.
Mint Tiny House Company in Canada is one company that makes tiny homes. Since 2014, they have been creating Tiny House RVs and park models.
One of their most beautiful RVs is called the Canada Goose Edition.
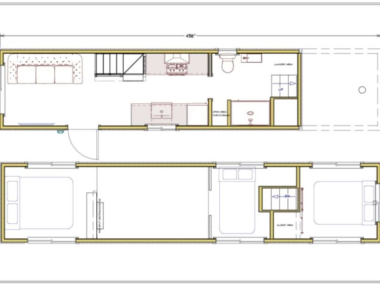
This model is 392 square feet, 8.6 feet wide, and 41 feet long. It can sleep six to eight people because it has three bedrooms.
There are six different layouts: Arctic, Pacific, Ozonia, Everest, Clover, and Celtic.

The Canada Goose RV is made on a gooseneck trailer. It uses special siding that protects it from hail, wind, and moisture.
This home, known as the “Traveler’s Paradise,” is painted white, but owners can choose from eight other colors.
The roof is metal-colored, which makes the outside look elegant.

The living room of this tiny home is at one end. Inside, the wood walls, ceiling, and window trims are all painted white, making the room feel peaceful.
The ceiling has exposed cedar beams that look like they are 4 inches by 4 inches, adding a natural touch to the home.
The floors are covered with a type of laminate that looks like natural wood, keeping up the theme of nature.
The track lighting on the ceiling is painted black, which stands out against the white. It also lights up the room well.

The kitchen, shaped like a narrow hallway, has plenty of room to prepare food. Everything you need is easy to reach.
The countertops on both sides of the kitchen are made of dark walnut butcher block, which is great for organizing food and kitchen tools.
Cooking meals is easy with the Furrion RV Propane oven and cooktop. The ceramic sink in front helps make dishwashing simple.
The large stainless steel refrigerator keeps food fresh for a long time. You can store dry foods in the off-white kitchen cabinets.

The bathroom is simple but has everything you need. It has frosted glass windows above the regular toilet, which let in light but keep things private.
There is a plain white sink with a chrome faucet that is very practical.
There are white cabinets under the sink for storing extra towels or cleaning supplies. On the other side, there is a shower made of vinyl with a glass door.

From the bathroom, there’s a black handrail next to three steps that lead up to the bedroom over the gooseneck of the trailer.
There are closets right next to the doorway.
The bedroom has big windows on one side that let in sunlight and show the outside view. A sliding barn door separates the bedroom from the rest of the house.

A steep and narrow staircase goes up to one of the two lofts. A ladder above the kitchen windows provides access to the other loft.
By choosing furniture and decorations carefully, people who live here can make the most of the space without making it feel too crowded.
You can see how everything fits together in the full floor plan for this model.

