Some people think that living in a tiny house means they can’t have friends and family over.
But that’s not true! With good planning, you can have enough space to entertain in your tiny home.
Here are some great floor plans that show how to do it. They include large decks, open living spaces, and cozy fireplaces.
Imagine having a tiny home where it’s easy to have guests over!
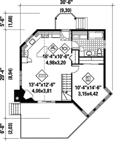
1. Cozy cottage with large deck from Architectural Designs


This lovely little cottage is designed by Architectural Designs and is 696 square feet big, which is about 65 square meters.
It has a big deck that’s great for hanging out outside. There are glass doors that open right into the living room.
Next to the living room, there’s a big kitchen where you can eat meals. There’s another door that goes to a small porch at the front.
In the back-right corner of the house, there’s a bathroom with a tub. The bedroom, which has a cool box window, is in the front-right corner.
2. Large windowed vacation home from Floorplans


The second home, from Floorplans, is 864 square feet or 80 square meters. It’s cozy and can be used as a vacation spot or a regular home.
It has a big terrace that you can get to from sliding doors in the kitchen and living room. There’s also a large fireplace in this area.
The bathroom is behind the kitchen. At the very back of the home, there are two bedrooms that are the same size.
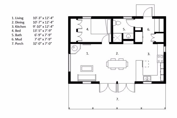
3. Rustic cabin with wood stove from Houseplans


This rustic house from Houseplans is 704 square feet, or 65 square meters. You can enter it through double French doors on the wide porch or a single door on the other side.
The French doors open right into the main living area, which has an open layout and a cozy fireplace.
The single door leads into a handy mudroom, which then goes to the bathroom. The bedroom is in the back-left corner of the house.
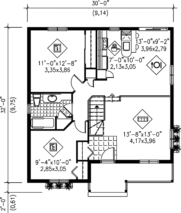
4. Cozy two-bedroom cottage from Architectural Designs


The second house, from Architectural Designs, is 892 square feet or 83 square meters. It’s great for having guests over.
The front door opens into a small tiled entryway with a closet for coats. Right off the entryway, to the right, is the living room.
Behind the living room is a higher kitchen and dining area, which includes a kitchen island with a bar for eating.
A small hallway from the kitchen goes to two bedrooms and a bathroom on the left side of the house.
5. Southern-style home with plenty of porch space from Houseplans


This lovely Southern-style home from Houseplans is 869 square feet, or 81 square meters.
It has a big porch in front and another on the left side. The living room, kitchen, and dining room are all on the left side of the house.
You can get into this area from doors on both porches. The two bedrooms are on the right side of the house.
They share a bathroom with a tub that is between them.
6. A-frame-style ranch home from Floorplans


The second design from Floorplans is 792 square feet, or 74 square meters. It has a beautiful wraparound deck and big windows at the front.
You enter the home through a door on the right side, which takes you straight into the main living area.
This space has high ceilings and a large fireplace, making it a cozy place for small gatherings.
There are two bedrooms and a bathroom with a tub at the back of the home.
