This 1,805-square-foot farmhouse has 2 bedrooms and 2 bathrooms. It is designed with 1.5 stories, giving you extra space. There is a large 4-car garage that can be used for parking, storage, or even as a workshop.
The bonus room and wraparound porch make it a great choice for a corner lot, offering more ways to enjoy the space both inside and outside.
Front View of a Rustic Farmhouse with Shingle and Stone Exterior

This farmhouse has a New England style, with a steep roof and a large wraparound porch. The exterior uses natural materials like wood and stone, making it sturdy and welcoming.
Its balanced design and simple lines give it a timeless look that feels both traditional and cozy.
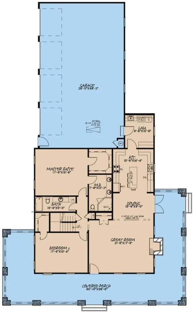
Main Level Floor Plan

The main level has an open layout. The great room connects to the kitchen and dining area, making it easy to move between spaces.
There are two bedrooms, with the master suite having its own private bathroom. The wraparound porch provides extra outdoor space, perfect for relaxing or entertaining.
Buy: The Plan Collection – Plan 193-1181
Second Level Layout

The upper level has a large bonus room that can be used as a home theater or extra living space. There’s also a full bathroom near the stairs for convenience. Attic storage is included, offering a smart way to keep things organized.
Buy: The Plan Collection – Plan 193-1181
Left View: Four-Car Garage and Extended Porch

The left side of the house features a large four-car garage, providing plenty of room for vehicles and storage.
The wraparound porch connects the front and back, making it easy to enjoy outdoor spaces. Wooden details on the garage doors and porch columns add to the rustic look of the home.
Back View: Wide Porch and Stone Chimney

The back of the house has a large wraparound porch, perfect for relaxing outside. A tall stone chimney adds a rustic charm to the design. Big windows let in lots of sunlight, making the indoor and outdoor spaces feel connected.
Rear View: Gabled Rooflines and Wood Siding

From the rear, the gabled rooflines create a bold and welcoming look. Large windows bring in natural light and offer views of the surroundings.
The natural wood siding blends beautifully with the outdoor environment, making the home feel like part of the landscape.
Buy: The Plan Collection – Plan 193-1181