Welcome to a 2,861-square-foot home that combines cozy rustic charm with modern comfort. The outside features natural stone, rich wood accents, and beautiful landscaping, creating a warm and inviting feel.
Inside, this home has 2 bedrooms and 2.5 bathrooms. Every space is thoughtfully designed to feel both comfortable and stylish. This one-story home is filled with details that make it welcoming and timeless.
Rustic Charm Meets Modern Comfort

This home blends rustic charm with modern comfort to create a warm and inviting feel. The outside features stone and stucco walls topped with a dark, sloping roof.
A stone pathway winds through neatly landscaped gardens, leading to the welcoming front porch supported by wooden pillars.
The dual garage doors blend smoothly with the stone walls, while greenery and large rocks add a natural touch. This design perfectly combines traditional materials with modern style, creating a home that feels both cozy and refined.
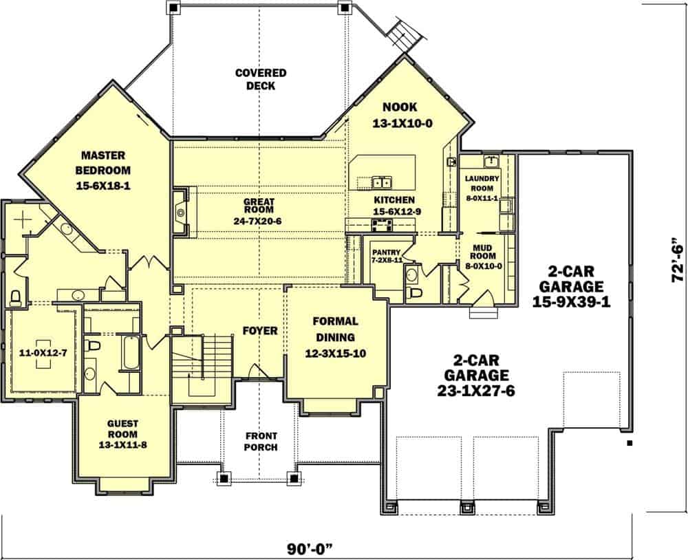
Spacious Main Floor for Everyday Living

The main floor is designed to be both practical and comfortable. At its center is a large great room that connects directly to the kitchen and breakfast nook, making it perfect for family time and hosting guests.
A covered deck extends the living space outdoors, great for meals or relaxing in the fresh air. The private master bedroom includes a large space and an ensuite bathroom.
Other features include a formal dining room, a guest bedroom, and a large mudroom and laundry room near the two-car garages. This layout balances privacy and shared spaces, making it ideal for a busy family.
Buy: The Plan Collection – Plan # 161-1127
Basement with Room for Fun

The basement is designed for entertainment and flexibility. A large recreational room is perfect for hanging out with friends or enjoying family activities.
A nearby bedroom includes a private bathroom and a big closet, offering comfort and privacy. A covered patio extends the fun outdoors, no matter the season.
The basement also has two large unfinished storage rooms, which can be used for keeping things organized or turned into extra rooms later. This basement layout is practical and fun, making it a great addition to the home.
A Family Home Full of Rustic Charm and Practical Design

This beautiful home combines rustic style with smart design. The outside has textured stone walls and dark wooden garage doors, creating a cozy and natural look.
The arched garage doors and wooden accents on the roof add warmth and charm. The front porch, supported by sturdy stone pillars, is a perfect spot to welcome guests.
The landscaped yard, with lush greenery and carefully placed rocks, completes the inviting feel. This home shows how stone, wood, and modern design can work together to be both stylish and functional.
A Rustic Retreat with a Spacious Covered Patio

This home blends rustic charm with modern comfort. The outside features natural stone and rich wood textures that create a welcoming look.
The large covered patio stands out with its wooden beams and stone pillars, making it an ideal space for outdoor gatherings. Big windows at the back let in plenty of natural light, brightening the inside.
A wrought iron fence surrounds the landscaped yard and garden, adding both color and elegance. This home beautifully connects indoor and outdoor spaces, creating a relaxing retreat.
A Warm and Welcoming Entrance

The entrance to this home combines rustic stone and warm wood accents for an inviting look.
The gabled roof, supported by wooden pillars, shades a front door with glass panels and a wrought iron chandelier. Stone walls on both sides of the entrance add to the natural charm.
The landscaped garden, with greenery and large rocks, guides guests to the front door and adds a cozy, welcoming touch. This home’s entrance perfectly reflects its mix of rustic style and modern elegance.
Elegant and Inviting Entryway

This entryway blends rustic charm with elegant touches. The front door has intricate wrought iron designs framed by large glass panels, adding a classy look.
Warm wood tones and a decorative wreath make it feel cozy, while the stone wall and wicker seating on the porch add extra charm. A dog statue brings a playful touch, making this entrance both stylish and welcoming.
Warm and Artistic Entryway

This welcoming entryway combines rustic wood with artistic details for a cozy feel. The wooden front door, decorated with wrought iron designs and glass panels, makes a grand first impression.
Inside, a cozy seating area by the staircase, with sturdy wooden pillars, invites you to relax. Soft wall lights and a horse painting add a personal touch, while plants and natural textures create a homely vibe.
The earthy colors and thoughtful decor make this entryway a warm introduction to the home.
Cozy Rustic Dining Room

This dining room is full of rustic charm and cozy details. An antique wooden hutch displays fine china and glassware, creating an elegant centerpiece.
The dining table, surrounded by a mix of soft and wooden chairs, sits under a striking chandelier that adds a modern touch. A large window seat with warm wooden trim brings in natural light, while a patterned rug ties the room together.
Greenery and carefully chosen decor complete the space, making it feel welcoming and comfortable.
Cozy Living Room with a Stone Fireplace

This cozy living room centers around a beautiful stone fireplace with a large vintage clock on top. The vaulted ceiling has exposed wooden beams that give the room a warm, lodge-like feel.
Comfortable leather chairs, wooden furniture, and a patterned rug make the space inviting. Bright throw pillows and a unique coffee table add personality.
The open layout lets natural light flow in from the nearby entryway, making the room feel bright and airy.
Rustic Living Room with a Valley View

This living room combines rustic charm with modern comfort. An A-frame window showcases a stunning valley view, bringing the outdoors inside. The centerpiece is a large stone fireplace topped with a vintage clock and greenery.
Wooden beams on the vaulted ceiling add warmth and style. Comfortable leather seating and a patterned rug make the room feel cozy, while eclectic decorations complete the look.
The open design allows plenty of natural light, creating a bright and welcoming space.
Rustic Living Room with Scenic Views and Cozy Details

This rustic living room pairs charm with comfort. An A-frame window frames a beautiful valley view, making it the highlight of the space.
The grand stone fireplace, decorated with a vintage clock and greenery, adds warmth and character.
Exposed wooden beams on the ceiling create a classic, rustic vibe. Leather chairs, a patterned rug, and eclectic decor bring a cozy, inviting touch. Natural light fills the room through the open layout, making it bright and relaxing.
Charming Rustic Wet Bar

This wet bar combines rustic charm with artistic flair. The black matte cabinets stand out against the warm, textured stone backsplash. Glass-paneled cabinet doors show off dishes and decorations, adding a personal touch.
A metal sign with a Colorado theme highlights the sink area, giving it character. A built-in wine fridge keeps your favorite drinks close, and under-cabinet lighting creates a cozy, inviting glow.
This wet bar is both functional and stylish, making it a great place to entertain or relax.
Gourmet Kitchen with Rustic Elegance

This kitchen blends rustic charm with modern style. At the center is a beautiful marble island, surrounded by orange leather stools for guests to gather. Vintage-style pendant lights hang above, adding warmth and character.
Cream-colored cabinets and stainless steel appliances offer plenty of storage and convenience, while wooden beams on the vaulted ceiling add a natural touch. This kitchen is both practical and elegant, perfect for cooking or socializing.
Rustic Kitchen and Dining Area with Lake Views

This kitchen and dining area combines rustic charm with elegant details. The kitchen features creamy cabinets, dark hardware, and a mosaic backsplash. A marble island with leather stools invites people to gather.
Wooden beams, earthy floors, and large windows with lake views make the space warm and inviting.
The dining area has a round glass table, upholstered chairs, and a classic chandelier, creating a perfect spot for casual meals or entertaining. This space balances comfort, style, and function beautifully.
Elegant Bedroom with Golf Course Views

This beautiful bedroom combines elegance with a cozy rustic feel. Large windows with wooden frames let in plenty of sunlight and offer stunning views of a lush golf course.
The bed, with soft pillows and a warm throw blanket, feels comfortable and relaxing. A plaid armchair in the corner adds personality and is perfect for reading or enjoying the view.
Soft lighting and a touch of greenery make the room feel warm and peaceful. This bedroom is a perfect retreat for rest and relaxation.
Charming Bathroom with Rustic and Modern Touches

This bathroom blends rustic charm with modern style. Wooden cabinets and a marble countertop create a warm, inviting look. The large mirror with a wooden frame matches the wooden doors, enhancing the rustic feel.
Wrought iron light fixtures and a unique chandelier add artistic flair. Green plants and wall art bring life and personality to the space. With practical storage and modern fixtures, this bathroom is both functional and stylish.
Rustic Bathroom with a Hint of Glam

This bathroom combines rustic charm with a modern, glamorous touch. The wooden door and cabinets give the room a cozy, natural feel, while the granite countertop adds elegance.
A large framed mirror makes the space feel bigger and reflects soft light from stylish pendant lights. Sleek black fixtures add a modern contrast to the mosaic tile backsplash and neutral shower tiles.
Greenery brings a fresh, natural vibe, perfectly balancing rustic warmth with a modern edge.
Warm and Functional Home Office

This cozy home office is both useful and stylish. The wooden desk has plenty of storage and creates a great workspace, while the high-backed office chair offers comfort.
Above the desk, small windows let in lots of natural light, making the room bright and cheerful. A sliding barn door adds rustic charm and makes it easy to connect with other rooms.
Decor like landscape artwork and a hanging light adds personality to this practical and inviting office.
Cozy Home Office with Wood Accents

This home office feels warm and welcoming with its rustic wood details. A sturdy wooden desk and matching cabinets provide plenty of space to work and store items.
The high-backed office chair is comfortable for long hours. A large window with a wooden frame offers a lovely view and lets in natural light.
A built-in window seat with striped cushions adds a cozy spot for reading or relaxing. Framed artwork and thoughtful decorations complete this functional and charming workspace.
Charming Laundry Room with Rustic Style

This laundry room is practical and full of rustic charm. Warm wooden cabinets and natural finishes make the space feel inviting. A granite countertop and farmhouse sink provide plenty of room for folding and washing.
A large window lets in natural light and offers a nice view. Modern stainless steel washer and dryer add a sleek touch that contrasts with the wood.
Extra details like a hanging rod, a soft rug, and decorative signs make this laundry room both functional and cozy.
Charming Rustic Mudroom

This mudroom combines rustic charm with smart design. Warm wooden cabinets provide plenty of storage, with built-in benches and cubbies that hold woven baskets.
A sliding barn door adds character and makes it easy to move between rooms. The black beadboard wall contrasts nicely with the lighter wood tones, giving the room a stylish look.
Hooks for coats, a wreath, cozy pillows, and a space for shoes make this mudroom both practical and welcoming.
Cozy Home Theater with a Wet Bar

This home theater is perfect for relaxing and entertaining. Plush leather recliners face a large projector screen, creating a comfortable movie-watching experience. Warm wood trim adds a cozy feel, and soft lighting sets the mood.
Next to the theater, a wet bar with rustic wood paneling and lit shelves is great for serving drinks.
Barstools make it easy to chat with friends, while sports memorabilia and neon signs add personality. This space is perfect for movie nights or casual get-togethers.
Charming Outdoor Lounge

This outdoor lounge is cozy and inviting, with seats arranged around a rustic wooden fire pit. Wicker furniture with beige cushions matches the colorful rug underneath.
Large windows connect the space to nature, offering stunning views and plenty of sunlight. Wooden ceiling beams and brown siding add to the rustic charm.
Potted flowers and soft recliners make the area even more comfortable, creating a perfect spot for relaxing or spending time with friends.
Inviting Outdoor Lounge with Golf Course Views

This outdoor lounge is a perfect spot to relax and enjoy the view. Comfortable wicker chairs with soft beige cushions make the space cozy and inviting.
A rustic wooden fire pit in the center is great for gatherings and conversations. A colorful patterned rug adds a cheerful touch. Wooden beams overhead provide shade, while the open design offers stunning views of the lush golf course.
Potted flowers and soft lighting complete the space, making it perfect for relaxing during the day or socializing in the evening.
Buy: The Plan Collection – Plan # 161-1127