Here’s a cozy modern farmhouse cottage that’s both charming and practical. It has 963 square feet of space, 2 bedrooms, and 2 bathrooms. This home is great for anyone who wants to downsize or needs a small, comfortable retreat.
The front porch is warm and welcoming, and the house has classic farmhouse touches like board-and-batten siding and wooden accents.
Inside, the living room, kitchen, and dining area are all connected in one open space. This design makes the house feel bright and spacious.
The main bedroom has its own bathroom, and the second bedroom is great for guests or could be used as an office. There’s also another full bathroom close by.
With its small size and smart design, this home offers modern comfort that’s easy to manage and full of style.
Cozy Modern Farmhouse Under 1,000 Sq. Ft.

This charming farmhouse-style cottage combines modern style with classic rustic touches.
It features vertical board-and-batten siding, natural stone accents, and a welcoming front porch supported by wooden beams. The bright white exterior with black-trimmed windows creates a bold and stylish look.
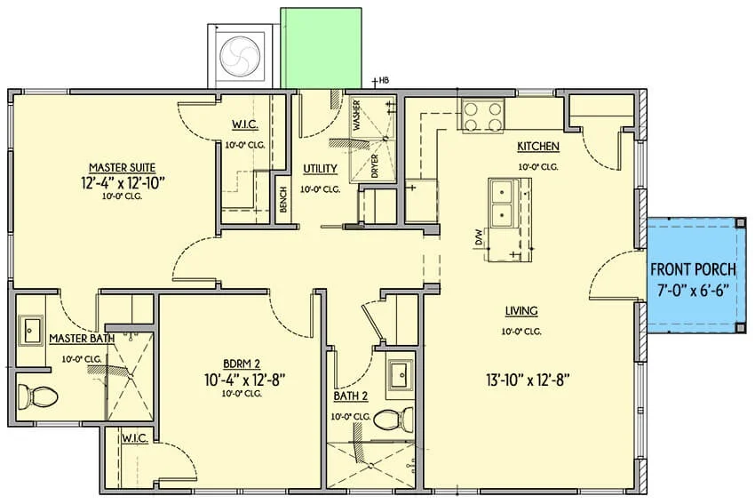
Floor Plan Highlights

This one-story home uses space wisely with a smart layout. It has 2 bedrooms and 2 bathrooms, including a master suite with a walk-in closet and a roomy master bathroom.
The open living and kitchen area is great for spending time with family or hosting friends. A utility room adds extra convenience, and the front porch completes the cozy farmhouse feel.
Buy: Architectural Designs – Plan 430094LY
Attractive Side View

The side of the house showcases its modern yet cozy design. The gabled roof, vertical siding, and stone foundation add texture and charm.
The well-placed windows bring in natural light, and the simple landscaping makes the home feel warm and inviting.
Cozy Living Room with Modern Touches

This living room combines comfort and style. It has simple furniture, big windows that let in lots of sunlight, and a sleek ceiling fan. A wall-mounted TV and modern artwork add to the farmhouse look, making the room feel warm and inviting.
Compact Kitchen with Island Seating

The kitchen is designed to be both practical and stylish. A central island offers extra seating, while smooth cabinets and modern light fixtures keep the space neat and simple. Large windows let in natural light, making the kitchen feel bright and cozy.
Modern Bathroom with Marble Finishes

This bathroom has a clean and elegant look. The walls are covered in marble tiles, and a floating vanity adds a modern touch. Big windows bring in natural light, while sleek fixtures and a large mirror make the space feel stylish and fresh.
Side View with Lots of Windows

The side of the house shows off its long, smooth roof and matching black-framed windows.
The dark roof stands out against the bright white walls, and the neatly trimmed plants around the house add a nice touch. This view shows how the design is both simple and stylish.
Clean and Elegant Rear View

The back of the house keeps the sleek, modern look. Large windows let in plenty of natural light while keeping the farmhouse charm. The simple landscaping makes sure the house’s design stays the main focus.
Buy: Architectural Designs – Plan 430094LY