Two-Story Modern 2-Bedroom Barndominium with Jack & Jill Bath and RV Garage (Floor Plan)

Sharing is caring!

Specifications

  • Sq. Ft.: 1,428
  • Bedrooms: 2
  • Bathrooms: 2.5
  • Stories: 2
  • Garage: 4-6

Details

This two-story modern barndominium has clapboard siding, sloping rooflines, and clerestory windows that fill the inside with lots of sunlight.

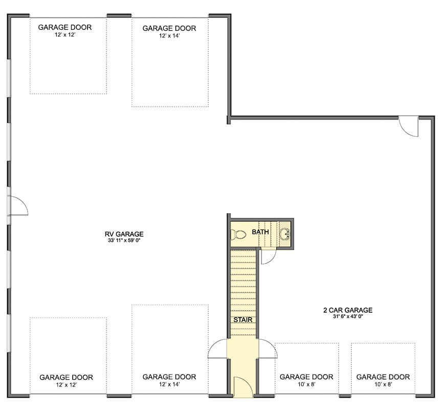
The main floor is mostly a large garage. It has two bays for cars and a big drive-through bay for RVs, trailers, or boats. There’s also a powder bathroom so you can clean up before going upstairs.

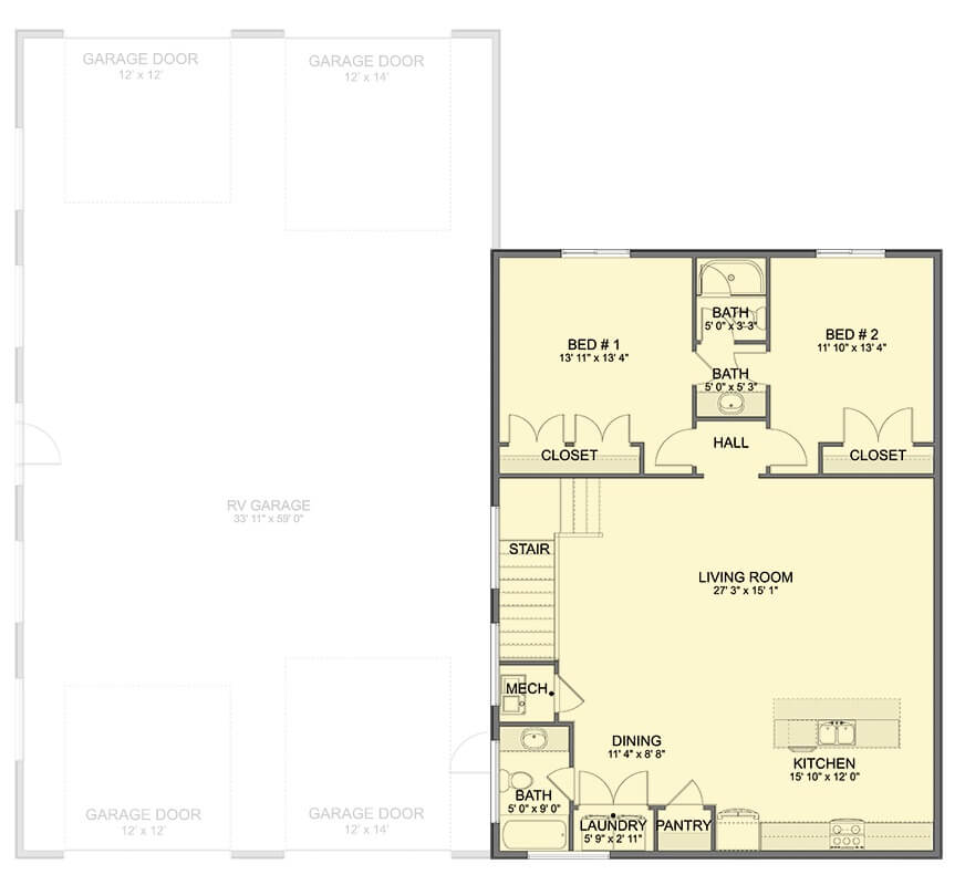
At the top of the stairs, the living room, dining area, and kitchen share an open layout. A vaulted ceiling makes the space feel roomy, and a big island in the kitchen provides extra workspace and seating for casual meals.

The bedrooms are located at the back of the house for privacy. They share a Jack-and-Jill bathroom with a sink, a tub, and a shower.

Floor Plan and Photos

0436 61526UT modern barndominium arcihtectural designs smallhometours.com 11
Main level floor plan
0436 61526UT modern barndominium arcihtectural designs smallhometours.com 10
Second level floor plan
0436 61526UT modern barndominium arcihtectural designs smallhometours.com 9
Front-right view
0436 61526UT modern barndominium arcihtectural designs smallhometours.com 8
Rear view
0436 61526UT modern barndominium arcihtectural designs smallhometours.com 7
Front-left view
0436 61526UT modern barndominium arcihtectural designs smallhometours.com 6
Living room
0436 61526UT modern barndominium arcihtectural designs smallhometours.com 5
Living room
0436 61526UT modern barndominium arcihtectural designs smallhometours.com 4
Kitchen and dining area
0436 61526UT modern barndominium arcihtectural designs smallhometours.com 3
Open-concept living

Pin This Floor Plan

0436 61526UT modern barndominium arcihtectural designs smallhometours.com 2 2

Architectural Designs Plan 61526UT