2-Bedroom Cabin Style Single-Story Home with Open Living Space and Wraparound Porch (Floor Plan)

Sharing is caring!

Specifications

  • Sq. Ft.: 1,488
  • Bedrooms: 2
  • Bathrooms: 2
  • Stories: 1

Details

This 2-bedroom cabin has a cozy, rustic design. It features wood siding, exposed rafters, a big chimney, and a wraparound deck that offers great views and extra living space.

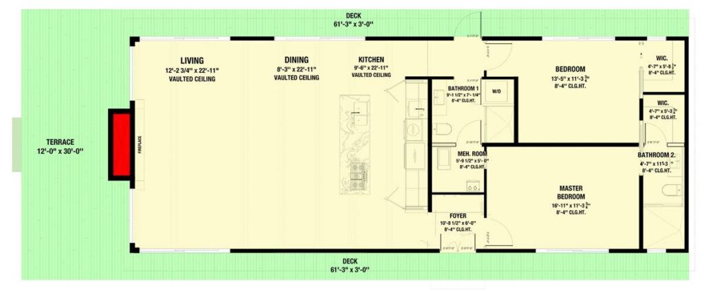
When you walk in, a small foyer welcomes you. From there, you enter an open space that combines the living room, dining area, and kitchen.

A big fireplace makes the room warm and inviting, and sliding glass doors connect the indoor and outdoor spaces. The kitchen has a large island with two sinks, a built-in cooktop, and a snack bar for casual eating.

The two bedrooms are on the right side of the house. The second bedroom shares a bathroom with the main living area. The primary bedroom has its own bathroom and a walk-in closet.

Floor Plan and Photos

0390 311055RMZ cabin style home architectural designs smallhometours.com 12
Main level floor plan
0390 311055RMZ cabin style home architectural designs smallhometours.com 11
Front elevation sketch of the 2-bedroom cabin style single-story home.
0390 311055RMZ cabin style home architectural designs smallhometours.com 1
Right elevation sketch of the 2-bedroom cabin style single-story home.
0390 311055RMZ cabin style home architectural designs smallhometours.com 10
Left elevation sketch of the 2-bedroom cabin style single-story home.
0390 311055RMZ cabin style home architectural designs smallhometours.com 9
Rear elevation sketch of the 2-bedroom cabin style single-story home.
0390 311055RMZ cabin style home architectural designs smallhometours.com 8
Left-rear view
0390 311055RMZ cabin style home architectural designs smallhometours.com 7
Rear view
0390 311055RMZ cabin style home architectural designs smallhometours.com 6
Living room
0390 311055RMZ cabin style home architectural designs smallhometours.com 5
Kitchen
0390 311055RMZ cabin style home architectural designs smallhometours.com 4
Primary bedroom
0390 311055RMZ cabin style home architectural designs smallhometours.com 3
Secondary bedroom

Pin This Floor Plan

0390 311055RMZ cabin style home architectural designs smallhometours.com 2

Architectural Designs Plan 311055RMZ