Step into this charming two-story Craftsman garage apartment with 1,096 square feet of living space. It has two bedrooms and two bathrooms, offering both comfort and style.
The blue siding, white trim, and stone accents give it a classic and modern look that feels warm and inviting.
Cozy Craftsman Garage Apartment with Classic Blue Siding

This home shows off the Craftsman style with its balanced design, neat window placement, and sturdy stone foundation.
Every detail, from the stylish garage doors to the combined living and storage spaces, reflects the practical beauty of Craftsman architecture.
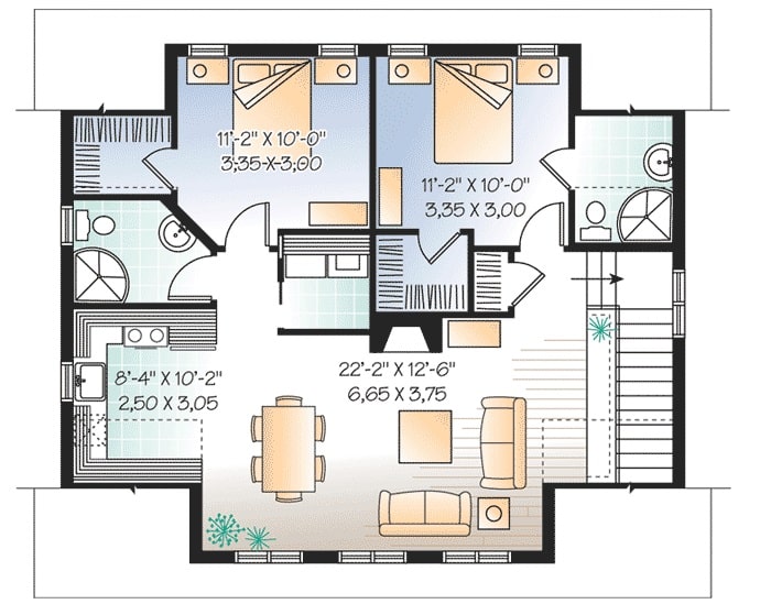
Explore This Easy-to-Use Craftsman Garage Plan

The garage design makes smart use of space, with room for a vehicle and extra storage. A clear walkway leads to stairs that take you to the upper apartment.
Thereβs also space for tools or a small workshop, perfect for DIY projects. The layout is designed for convenience, making storage and access simple and efficient.
Comfortable Craftsman Living with Two Bedrooms

This floor plan uses space wisely, offering an open living and dining area next to two roomy bedrooms. The living room sits in the center and flows easily into the dining area, ideal for spending time with family or friends.
The kitchen is tucked away for privacy but still easy to reach. Both bedrooms are comfortable and have easy access to the shared bathroom. The design focuses on practicality and comfort, creating a home that feels welcoming and functional.
Charming Craftsman Garage Apartment with Bold Blue Siding

This Craftsman garage apartment stands out with its bright blue siding and crisp white trim. The windows on the upper floor are evenly spaced to let in plenty of sunlight, giving the home a classic look.
Stone accents at the bottom add a natural touch, and the carriage-style garage doors give it a timeless feel. A neat side entrance adds convenience and completes the stylish design, blending modern comfort with traditional charm.
Cozy Craftsman Living Room with a Stone Fireplace

This living room brings together comfort and practicality in a true Craftsman style. The stone fireplace is the centerpiece, with a sleek TV mounted above it.
The compact kitchen features dark cabinets and stainless steel appliances for a modern vibe, while wooden bar stools add a rustic touch.
Textured wallpaper and layered lighting create a warm and inviting space, perfect for relaxing or spending time with friends and family.
Relaxing Bedroom with Playful Decor

This bedroom is designed to help you unwind, with soft pink and neutral colors creating a calming feel. The plush bed features a fun βHit the Hayβ pillow that adds personality.
Two wooden nightstands with colorful glass lamps sit on either side of the bed, adding balance and a pop of color.
The cozy vibe is enhanced by patterned bedding, a warm throw blanket, and elegant hardwood floors, making this room both comfortable and stylish.
Bright and Cozy Bedroom with Fun Details

This bedroom is designed for comfort and relaxation. The soft bedding has layers of textures, like an embroidered duvet and a sparkly pillow, making it extra inviting. Sunlight streams through the blinds, creating pretty patterns on the walls.
Two stylish glass lamps sit on mirrored nightstands, adding a touch of elegance. Above the bed, cheerful quote art adds a fun and personal feel.
Warm pink accents, like the comfy throw blanket and decorative pillow, bring a pop of color to this peaceful space.
Source: Architectural Designs β Plan 21550DR