2-Bedroom Southern Style Single-Story Duplex Home with Open Living Space and Double Garage (Floor Plan)

Sharing is caring!

Specifications

  • Sq. Ft.: 2,574
  • Units: 2
  • Width: 70′
  • Depth: 51′
  • Garage: 2-4

Details

This one-story duplex home has a charming Southern style. It includes two matching units, each with 2 bedrooms, 2.5 bathrooms, and a 455-square-foot garage.

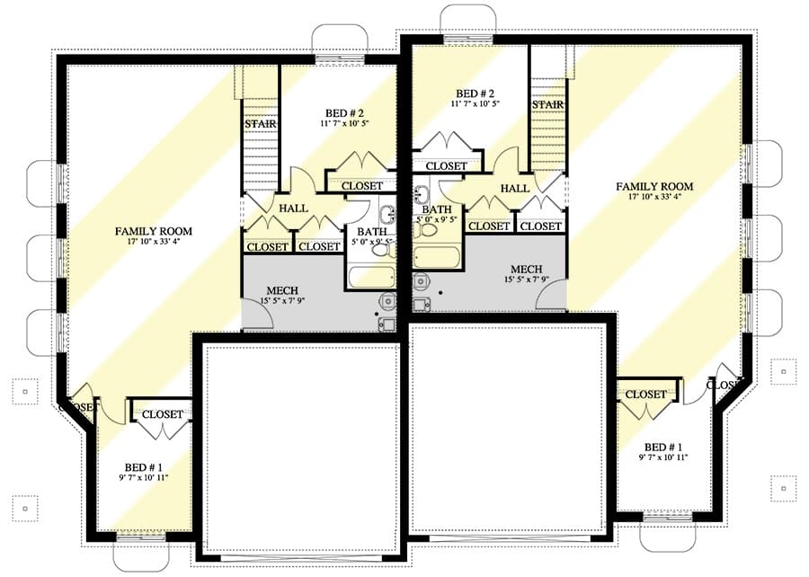
You can also add a basement with 2 extra bedrooms, a shared bathroom, and a big family room that’s great for games or movie nights.

A covered front porch leads to the entryway, where you’ll find a coat closet. Nearby, there’s a bedroom and a shared bathroom with a sink, a tub, and a shower.

The main living area has an open floor plan that connects the kitchen, dining room, and family room. Big windows let in lots of sunlight and offer great views. Sliding glass doors in the back open up to an outdoor space, perfect for entertaining.

The kitchen has a large counter with a sink, a dishwasher, and space for casual meals.

The private main bedroom (the primary suite) includes a walk-in closet and a bathroom with five features: a shower, a tub, two sinks, and a toilet.

0345 61478UT southern home architectural designs smallhometours 18
Main level floor plan
0345 61478UT southern home architectural designs smallhometours 17
Lower level floor plan
0345 61478UT southern home architectural designs smallhometours 16
Front elevation sketch of the 2-bedroom Southern style single-story duplex home.
0345 61478UT southern home architectural designs smallhometours 15
Right elevation sketch of the 2-bedroom Southern style single-story duplex home.
0345 61478UT southern home architectural designs smallhometours 14
Left elevation sketch of the 2-bedroom Southern style single-story duplex home.
0345 61478UT southern home architectural designs smallhometours 13
Rear elevation sketch of the 2-bedroom Southern style single-story duplex home.
0345 61478UT southern home architectural designs smallhometours 12
Front-left view
0345 61478UT southern home architectural designs smallhometours 11
Front-right view
0345 61478UT southern home architectural designs smallhometours 10
Rear view
0345 61478UT southern home architectural designs smallhometours 9
Kitchen
0345 61478UT southern home architectural designs smallhometours 8
Kitchen
0345 61478UT southern home architectural designs smallhometours 7
Family room
0345 61478UT southern home architectural designs smallhometours 6
Dining room
0345 61478UT southern home architectural designs smallhometours 5
Primary bedroom
0345 61478UT southern home architectural designs smallhometours 4
Family room
0345 61478UT southern home architectural designs smallhometours 3
Dining area

Pin This Floor Plan

0345 61478UT southern home architectural designs smallhometours 2 1

Architectural Designs Plan 61478UT