Specifications
- Sq. Ft.: 1,655
- Bedrooms: 2
- Bathrooms: 2.5
- Stories: 1
- Garage: 2
Details
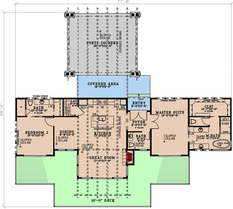
This cozy, single-story lake house has a warm and inviting design. The outside features wooden siding, stone details, and sloped roofs. A covered driveway with a sloped ceiling and wooden beams provides parking for two cars.
A French-style front door leads you into the entryway, where thereβs a small bathroom nearby. From there, you step into a big open space that combines the living room, dining area, and kitchen.
The living room has a fireplace for a cozy feel, and sliding glass doors connect the indoor and outdoor spaces. The kitchen has everything you need, including a pantry, a prep island, and easy access to the laundry room to help with multitasking.
The main bedroom is on one side of the house. It has its own door to the deck and a private bathroom. The bathroom includes two sinks, a soaking tub, a shower with a built-in seat, and a walk-in closet with high windows for natural light.
On the other side of the house is the second bedroom. It has its own bathroom, a walk-in closet, and sliding glass doors that lead to the sun deck.
Floor Plan and Photos












Pin This Floor Plan

Architectural Designs Plan 70864MK
