Country Style Two-Story 2-Bedroom Home for a Narrow Lot with Loft and Front Porch (Floor Plan)

Sharing is caring!

Specifications

  • Sq. Ft.: 1,690
  • Bedrooms: 2
  • Bathrooms: 2
  • Stories: 2

Details

This two-story house has a charming country look with its board-and-batten siding, brick chimney, and a wide front porch with decorative pillars and a big roof peak in the middle.

When you walk inside, you’ll find an open living space where the living room, dining area, and kitchen are all connected. There’s a fireplace that makes the space warm and cozy. A door in the kitchen leads to the back porch for extra outdoor space.

On the left side of the house, there are two bedrooms and a shared bathroom. The bedroom in the back can also be used as a home office if needed.

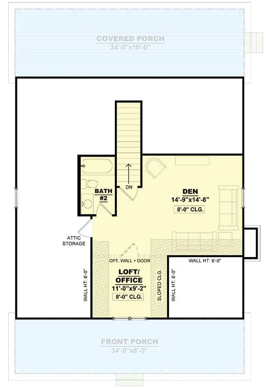
Upstairs, there’s a comfortable den and a loft that can work as an office. The loft has an optional door if you need privacy.

Floor Plan and Photos

0282 810019RBT country style home architectural designs smallhometours
Main level floor plan
0282 810019RBT country style home architectural designs smallhometours 11
Second level floor plan
0282 810019RBT country style home architectural designs smallhometours 10
Front elevation sketch of the country style two-story 2-bedroom home.
0282 810019RBT country style home architectural designs smallhometours 9
Rear elevation sketch of the country style two-story 2-bedroom home.
0282 810019RBT country style home architectural designs smallhometours 8
Front-right rendering with a brick chimney and a covered entry porch topped with a large center gable.
0282 810019RBT country style home architectural designs smallhometours 7
The covered porch is mirrored at the back of the home.
0282 810019RBT country style home architectural designs smallhometours 6
Rear-left rendering showcasing the vertical siding and decorative columns framing the covered porch.
0282 810019RBT country style home architectural designs smallhometours 5
The living room features a stone fireplace and an L-shaped sofa paired with a wooden coffee table.
0282 810019RBT country style home architectural designs smallhometours 4
Dining area with a round dining set surrounded by round back armchairs.
0282 810019RBT country style home architectural designs smallhometours 3
The kitchen is equipped with stainless steel appliances, white cabinetry, marble countertops, and a peninsula bar.

Pin This Floor Plan

0282 810019RBT country style home architectural designs smallhometours 2

Architectural Designs Plan 810019RBT