Cottage Style 2-Bedroom Single-Story Ranch with Open Living Space and Front Porch (Floor Plan)

Sharing is caring!

Specifications

  • Sq. Ft.: 988
  • Bedrooms: 2
  • Bathrooms: 2
  • Stories: 1

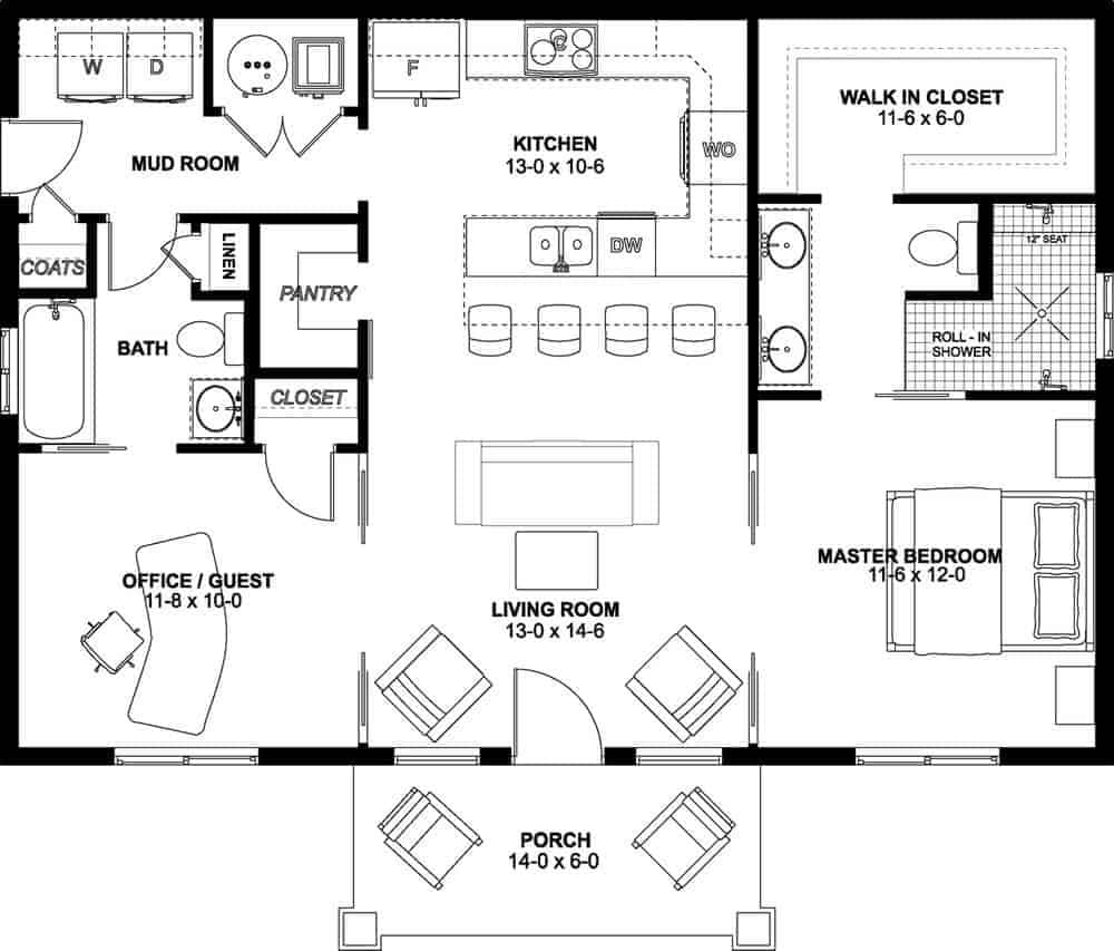
The Floor Plan

0121 cottage style ranch smallhometours.com 14
Main level floor plan
0121 cottage style ranch smallhometours.com 13
Alternate primary bath layout

Details

This cozy 2-bedroom cottage has a charming look, with board and batten siding, windows with shutters, and a front porch with beautiful, rustic timbers.

When you step inside, you’ll find the living room and kitchen together in the center of the home. Big windows let in lots of sunlight and offer beautiful views.

The kitchen has a bar that separates it from the living room, U-shaped counters, and is right next to the mudroom with a washer and dryer.

The main bedroom is on the right side of the house. It has a large bathroom with four pieces and a walk-in closet.

On the other side of the house, there’s a flexible room that could be an office or a guest room. It includes a built-in closet and is close to a full bathroom.

Photos

0121 cottage style ranch smallhometours.com 12
Living room
0121 cottage style ranch smallhometours.com 11
Kitchen
0121 cottage style ranch smallhometours.com 10
Kitchen
0121 cottage style ranch smallhometours.com 9
Primary bedroom
0121 cottage style ranch smallhometours.com 8
Primary vanity
0121 cottage style ranch smallhometours.com 7
Home office
0121 cottage style ranch smallhometours.com 6
Home office
0121 cottage style ranch smallhometours.com 5
Bathroom
0121 cottage style ranch smallhometours.com 4
Laundry room
0121 cottage style ranch smallhometours.com 3
Laundry room

Pin This Floor Plan

0121 cottage style ranch smallhometours.com 2

Source