1-Bedroom Rustic Two-Story Carriage Home with RV Garage and Open Living Space (Floor Plan)

Sharing is caring!

Specifications

  • Sq. Ft.: 967
  • Bedrooms: 1
  • Bathrooms: 1
  • Stories: 2
  • Garage: 3

The Floor Plan

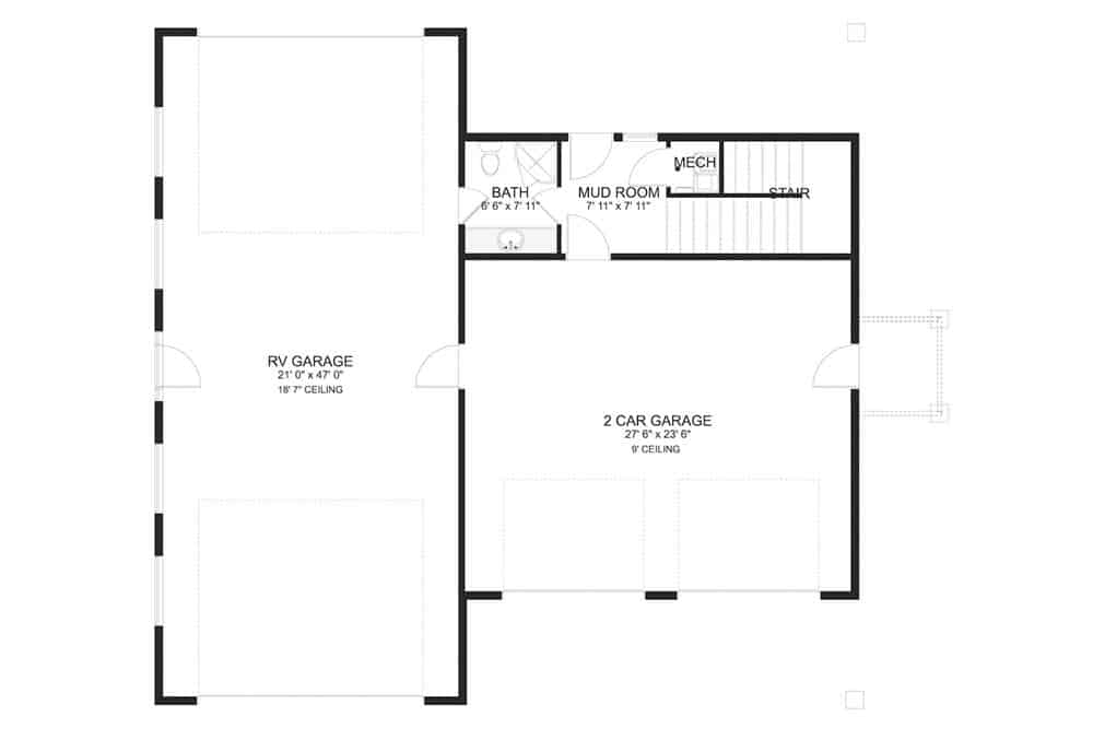
0111 rustic carriage home smallhometours.com 16
Main level floor plan
0111 rustic carriage home smallhometours.com 15
Second level floor plan
0111 rustic carriage home smallhometours.com 14
Front elevation sketch of the 1-bedroom rustic two-story carriage home.
0111 rustic carriage home smallhometours.com 13
Right elevation sketch of the 1-bedroom rustic two-story carriage home.
0111 rustic carriage home smallhometours.com 12
Left elevation sketch of the 1-bedroom rustic two-story carriage home.
0111 rustic carriage home smallhometours.com 11
Rear elevation sketch of the 1-bedroom rustic two-story carriage home.

Details

This two-story carriage home has a cozy, rustic look with its vertical and horizontal siding, big wooden doors, and pretty wood pillars.

On the first floor, there’s a bathroom, a mudroom, a room for heating and cooling systems, and a big 3-car garage. There’s also room to park an RV, or you can use this extra space to park three more cars, making room for six cars in total.

Upstairs, you’ll find where everyone hangs out. The kitchen has a big island with two sinks. From the kitchen, French doors open up to a large deck that joins the living and dining areas, making it great for gatherings.

At the back of the house, the main bedroom is a peaceful spot with its own bathroom and laundry close by. It has a big closet and its own deck, perfect for relaxing. The private deck accessible through a French door.

Photos

0111 rustic carriage home smallhometours.com 10
Front-right rendering showcasing the spacious deck and 3-car garage with one RV parking space.
0111 rustic carriage home smallhometours.com 9
Right rendering with a side entrance supported by wooden pillars.
0111 rustic carriage home smallhometours.com 8
The spacious front deck is mirrored on the back of the home.
0111 rustic carriage home smallhometours.com 7
The living room has contemporary seats, a floral area rug, and a TV mounted above the console table.
0111 rustic carriage home smallhometours.com 6
Eat-in kitchen with hardwood floor and access to the front deck.
0111 rustic carriage home smallhometours.com 5
The kitchen includes stainless steel appliances, white cabinetry, and a breakfast island fitted with a prep sink.
0111 rustic carriage home smallhometours.com 4
An open layout view of the kitchen, dining area, and living room.
0111 rustic carriage home smallhometours.com 3
The primary bedroom features a custom wooden bed and a private deck accessible through a French door.
0111 rustic carriage home smallhometours.com 2
Shared bathroom with a marble-top vanity and a tub and shower combo.

Pin This Floor Plan

0111 rustic carriage home smallhometours.com 1

Source