Single-Story 3-Bedroom Lake Drive Open Floor Plan Country Style Home (Floor Plan)

Sharing is caring!

Welcome to photos and layout for a single-story 3-bedroom Lake Drive open floor plan country style home. Here’s the floor plan:

Specifications:

  • Sq. Ft.: 1,892
  • Bedrooms: 3
  • Bathrooms: 2.5
  • Stories: 1
  • Garages: 2
0018 single story 3 bedroom lake drive open floor plan country style home smallhometours.com 10
Main level floor plan
0018 single story 3 bedroom lake drive open floor plan country style home smallhometours.com 7
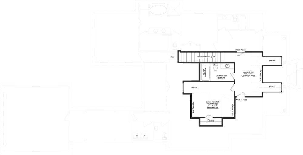
Optional second level floor plan
0018 single story 3 bedroom lake drive open floor plan country style home smallhometours.com 9
Home’s front view showcasing hipped roofs, dormer windows, wooden shutters, and a front porch supported by exterior columns.
0018 single story 3 bedroom lake drive open floor plan country style home smallhometours.com 8
A closer look at the front porch shows the white rocking chair and a wooden front door lit by a glass pendant light.
0018 single story 3 bedroom lake drive open floor plan country style home smallhometours.com 7
A pair of round cushioned stools complement the marble top breakfast island.
0018 single story 3 bedroom lake drive open floor plan country style home smallhometours.com 6
The kitchen is equipped with white cabinetry, absolute black granite countertop, and stainless steel appliances.
0018 single story 3 bedroom lake drive open floor plan country style home smallhometours.com 6
The living room has cozy beige seats, a step ceiling, and a fireplace topped with a landscape painting.
0018 single story 3 bedroom lake drive open floor plan country style home smallhometours.com 5
The french door on the side opens to the rear porch and open patio.
0018 single story 3 bedroom lake drive open floor plan country style home smallhometours.com 5
Two skirted armchairs along with a matching ottoman sit in front of the fireplace.
0018 single story 3 bedroom lake drive open floor plan country style home smallhometours.com 4
Formal dining room with round back chairs, a wooden dining table, and a buffet bar adorned with a bold artwork.
0018 single story 3 bedroom lake drive open floor plan country style home smallhometours.com 4
A beaded chandelier illuminates the primary bedroom furnished with a white comfy bed and round nightstands.
0018 single story 3 bedroom lake drive open floor plan country style home smallhometours.com 3
Primary bathroom with a walk-in shower, white vanity, and a deep soaking tub fitted with wrought iron fixtures.
0018 single story 3 bedroom lake drive open floor plan country style home smallhometours.com 3
This bedroom offers two dark wood beds and round side tables that double as nightstands.
0018 single story 3 bedroom lake drive open floor plan country style home smallhometours.com 2
A warm candle chandelier hanging from the cathedral ceiling brightens the dining room.
0018 single story 3 bedroom lake drive open floor plan country style home smallhometours.com 2
An open layout view showing the living room, kitchen, and dining room.
0018 single story 3 bedroom lake drive open floor plan country style home smallhometours.com 1
Rear exterior view showing the covered porches lined with brick columns.

This single-story country-style house has a big open layout. You can see across all the rooms to the back porch. There’s also an optional second floor with a bedroom, a bathroom, and a large common area that can be finished later.

The spacious front porch leads into an entryway with a clear view of the main living areas.

To the left is a formal dining room marked by decorative columns.

Straight ahead, the family room has a fireplace and French doors that open to the back porch. This room connects to a modern kitchen with special cabinets and an island that has a double sink.

Next to the kitchen, there’s a small bathroom, a laundry room, and a covered path to a two-car garage.

The bedrooms are on the right side of the house, away from the main areas for more privacy. There are two bedrooms, each with walk-in closets and a bathroom they share. There’s also a main bedroom with a high, vaulted ceiling.

Source