Single-Story 3-Bedroom The Kilpatrick Home (Floor Plan)

Sharing is caring!

Welcome to photos and layout for a single-story 3-bedroom The Kilpatrick home.

Specifications:

  • Sq. Ft.: 1,608
  • Bedrooms: 3
  • Bathrooms: 2
  • Stories: 1

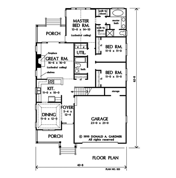
Here’s the floor plan:

0012 single story 3 bedroom the kilpatrick home smallhometours.com 11
Entire floor plan of the single-story 3-bedroom The Kilpatrick home.
0012 single story 3 bedroom the kilpatrick home smallhometours.com 10
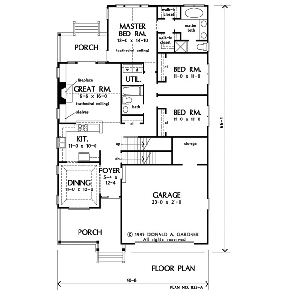
Bonus room floor plan
0012 single story 3 bedroom the kilpatrick home smallhometours.com 9
Basement stairs floor plan

This lovely one-story craftsman home shines with its yellow walls, white pillars, and pretty roofs with special trims.

When you walk up to the welcoming front porch and step inside, you see a big open space that leads to the back porch where the air is fresh.

0012 single story 3 bedroom the kilpatrick home smallhometours.com 8
Home entry with a covered porch and a red brick stoop that matches the flooring.
0012 single story 3 bedroom the kilpatrick home smallhometours.com 7
A pair of white rocking chairs along with fresh potted plants fill the covered front porch.

To the left is a dining room with a beautiful ceiling, right next to the kitchen, which makes it easy to serve food. Across the room, there’s a staircase going up to a big extra room that can be used later.

Further in, the large living room has a warm fireplace and a tall ceiling that makes the room feel bigger. This room also opens up to the back porch, perfect for enjoying the outside.

0012 single story 3 bedroom the kilpatrick home smallhometours.com 6
The living room offers a warm fireplace, brown leather armchairs, and a tufted ottoman over a tasseled area rug.
0012 single story 3 bedroom the kilpatrick home smallhometours.com 5
There’s also a wooden cabinet and a velvet sofa placed under the large painting.
0012 single story 3 bedroom the kilpatrick home smallhometours.com 4
The kitchen is equipped with white cabinetry, granite countertops, and stainless steel appliances.
0012 single story 3 bedroom the kilpatrick home smallhometours.com 3
A formal dining room with a buffet bar and wooden dining set illuminated with an ornate chandelier.
0012 single story 3 bedroom the kilpatrick home smallhometours.com 1
Bonus room furnished with floral and skirted seats, dark wood console table, and white cabinets topped with framed photos.
0012 single story 3 bedroom the kilpatrick home smallhometours.com 2
The traditional staircase is fitted with white drawers for additional storage.

There are two bedrooms that share a bathroom across from the living room.

Nearby, there’s a laundry room and the main bedroom. This bedroom has a high ceiling like the living room, doors to the back porch, separate closets for him and her, and its own bathroom, making it a comfy place to relax.

0012 single story 3 bedroom the kilpatrick home smallhometours.com 2
This bedroom has beige carpet flooring and bright green walls adorned with white framed artworks and a rectangular mirror.